
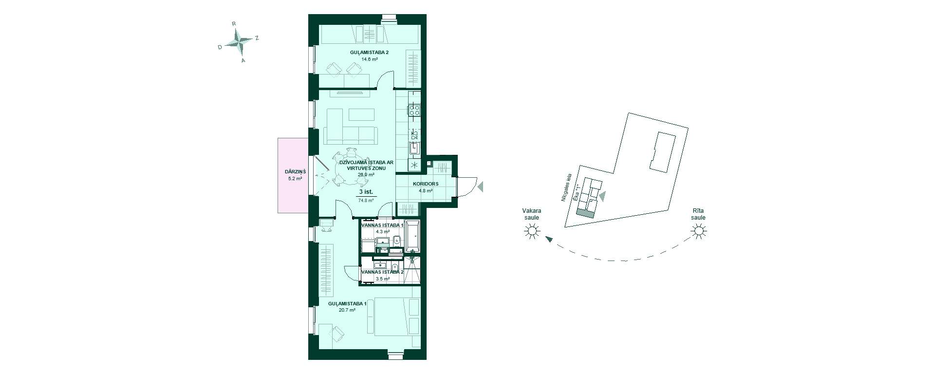
Nīcgales 17A K1-01, 183 000 €, 3 -istabu dzīvoklis, Platība 80 m²
Saulains dienvidu puses mājoklis ar diviem sanmezgliem un personīgo zaļo zonu

Google maps trešās puses datu izmantošana
Saulains dienvidu puses mājoklis ar diviem sanmezgliem un personīgo zaļo zonu
Elegants un moderns mājoklis ēkas 1. stāvā ar plašu dzīvojamo istabu un lieliem logiem, kas novietoti uz trijām debess pusēm, nodrošinot daudz dabiskās gaismas.
Šis 80,0 m² dzīvoklis piedāvā ērtu un pārdomātu plānojumu. Ieiejot dzīvoklī, jūs sagaida plaša priekštelpa (4,8 m²) ar vietu iebūvētajiem skapjiem. Tā ved uz gaišu dzīvojamo istabu ar virtuvi (26,9 m²). Dzīvojamā istaba ar lieliem logiem, kas vērsti uz dienvidiem, nodrošina bagātīgu dabisko apgaismojumu un rada mājīgu atmosfēru. No dzīvojamās zonas ir izeja uz privāto zaļo zonu (5,2 m²). Dzīvoklī ir divas plašas guļamistabas (14,6 m² un 20,7 m²), kas novietotas katra savā pusē dzīvojamajai istabai, piedāvājot privātumu un daudz vietas komfortablai atpūtai. Lielajai guļamistabai ir sava atsevišķa vannasistaba, savukārt otrā vannasistaba ir pieejama no dzīvojamās istabas.
Komforts un drošība Purvciema sirdī
Paaugstināta komforta jaunais projekts Nīcgales ielā 17A, kurā vienlaicīgi taps 2 ēkas ar 37 dzīvokļiem katrā, apvieno mūsdienīgu arhitektūru ar pārdomātu labiekārtojumu, radot harmonisku un ērtu dzīves vidi. Slēgtā teritorija ar videonovērošanu nodrošinās drošību, savukārt zaļās atpūtas zonas, rotaļu un sporta laukumi, kā arī lapenes ar piknika vietām būs lieliska vieta atpūtai un kopābūšanai. Velo novietnes, privātās garāžas un elektroauto uzlādes iespējas padarīs ikdienu ērtāku, bet uz ēku jumtiem izvietotie saules paneļi palīdzēs samazināt elektrības patēriņu. Projekta labiekārtojums veidots, harmoniski iekļaujoties apkārtējā vidē, saglabājot esošos kokus un nodrošinot zaļu un estētisku ainavu. Katram dzīvoklim cenā ir iekļauta slēdzama personīgā mantu noliktava ēkas pirmajā stāvā. Lielākajai daļai dzīvokļu ir iespēja iegādāties autostāvvietu pie mājas, kā arī pieejamas privātās garāžas ēkas pirmajā stāvā.
Uzticamība un skandināvu kvalitāte
Bonava ir vadošais nekustamo īpašumu attīstītājs, kas garantē augstas kvalitātes mājokļus ar uzsvaru uz energoefektivitāti un komfortu. Pērkot mājokli no Bonava, Jūs iegūstat drošu un uzticamu investīciju nākotnē.

Elīna Lube

Mareks Gražuls
![]()
Kā nokļūt
Blakus jaunajam projektam Purvciemā, Nīcgales ielā atrodas esošas sērijveida daudzdzīvokļu ēkas, kā arī Rīgas Itas Kozakēvičas poļu vidusskola. No pilsētas centra šeit var ērti nokļūt ar sabiedrisko transportu – tuvumā atrodas 11., 13., 16., 17., 18. un 23. trolejbusa, kā arī 48. un 49. autobusu pieturvietas. Savukārt brauciens ar auto no mājām līdz Brīvības piemineklim aizņems 15 minūtes.
![]()
Kur paēst
Tuvējā māju apkārtnē atrodas dažādas ēdināšanas iestādes, tostarp “Captain Sushi”, “Vecais Pēteris”, “Kebab House”, “Ezītis miglā”, “Sushicrab” un “Lemonchello”. Savukārt pāris minūšu braucienā attālumā ir tirdzniecības centrs “Domina”, kura piedāvājumā sev ko piemērotu atradīs ikviens.
![]()
Atpūta un sports
Aktīva dzīvesveida cienītājiem vietu sportam nebūs tālu jāmeklē – projektam pretī atrodas sporta klubs “Move Gym”, tāpat mazāk nekā 20 minūtēs varēsiet aiziet arī uz fitnesa klubu F1, sporta zāli “Lemon Gym” un “Owl Gym”. Atpūtu apvienot ar izkustēšanos būs iespējams boulinga sporta centrā “Mēness”.
![]()
Skolas un bērnudārzi
Jaunā projekta apkārtnē pieejamas izglītības iestādes dažādiem vecumiem. Tuvumā atrodas Rīgas 243. PII, Rīgas 252. PII, Rīgas 233. PII un Rīgas 61. PII, kā arī dažādi privātie bērnudārzi. Tāpat īsa gājiena attālumā ir Rīgas 85. pamatskola, Rīgas Klasiskās ģimnāzijas sākumskola, Rīgas Valsts Klasiskā ģimnāzija, Rīgas 64. vidusskola un Rīgas Itas Kozakēvičas poļu vidusskola.
![]()
Iepirkšanās
Arī, lai iepirktos, no jaunajām mājām tālu nebūs jādodas. Blakus projektam atrodas iepirkšanās centrs “Minska”, pāris minūšu braucienā nokļūsiet gan uz lielveikalu “Rimi”, gan “Lidl”, savukārt pa ceļam uz centru varēsiet iebraukt tirdzniecības centrā “Domina” un vairumtirdzniecības veikalā “Promo”.




